Actualité AQUAsoluces et La Boutique de la Micro-station

Dépannage Micro Station d'épuration 150 EH
Entretien et dépannage d’une Micro station d’épuration de 150 Équivalents Habitants
Cette station d’épuration Graf Klaro XXL 150 EH, composée de 4 cuves de 16000 Litres chacune, avec un traitement des eaux usées réellement efficace, est récemment tombée en panne : panne...

Agenda Juillet-Août 2020 : complet !
Pour tous vos projets Assainissement, contactez nous dès maintenant !
L’agenda Juillet est complet !
Nous serons en congés tout le mois d’Août.
Rendez-vous en Septembre 2020 !
Contactez nous dès maintenant pour réserver votre place privilégiée pour profiter de notre savoir faire...

Micro station GRAF EasyOne 7 EH
Un nouveau chantier d’ Assainissement Non Collectif validé par le SPANC de Saint-Lô Agglomération
Nous retrouvons, ce matin, notre fidèle partenaire SARL Erick HAMOND de La Meauffe ( 50880 ) pour la pose et la mise en service d’une Micro-station d’épuration des eaux usées...

Eloy X-Perco QT 5 EH
Entretien d’un filtre compact Eloy X-Perco QT 5 EH
Le procédé épuratoire est simple :
Une fosse toutes eaux : pré-traitement, décantation des boues et séparation des graisses en surface. Cette fosse est équipée d’un préfiltre en sortie pour éviter toute migration de matière vers le...

Étude de sol Manche (50), Calvados (14), Orne (61)
Étude de sol Assainissement Non Collectif en Basse Normandie
L’expérience AQUAsoluces en étude de sol et de définition de filière d’Assainissement Non Collectif n’est plus à démontrer ! Voici l’aperçu de nos interventions quant aux conceptions d’assainissement !...

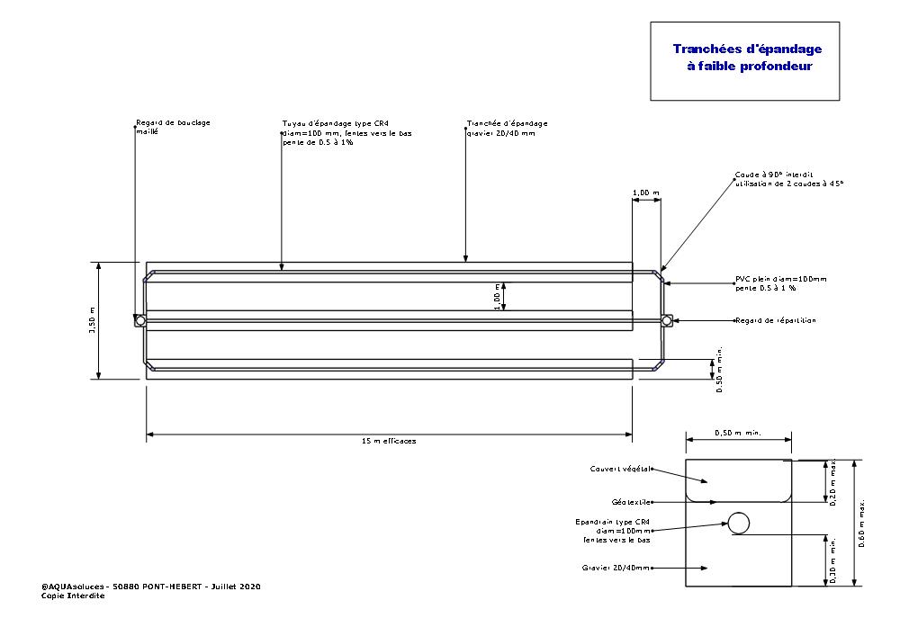
Épandage à faible profondeur
Traitement et évacuation des eaux usées par infiltration dans le sol
Qu’est ce qu’un épandage à faible profondeur ?
Ce procédé permet de traiter efficacement et d’évacuer les eaux usées domestiques. Les eaux usées sont alors collectées dans une fosse toutes eaux pour...

Étude sol : Réhabilitation
Assainissement Non Collectif : Mettre aux normes une installation existante
Les anciennes installations septiques ne correspondent plus à nos usages de l’eau actuel. Les volumes d’eau consommés ont considérablement augmenté, sans compter l’emploi des produits ménagers,...

Phytoplus SBR 8000
Entretien d’une micro station à culture fixée
L’entretien de ce jour est effectué sur une micro station d’épuration Phytoplus SBR 8000, utilisée en résidence principale par 4 personnes. L’installation est agée de 7 ans. Le dernier entretien a été effectué il y a 2 ans...

Gel Hydro alcoolique COVID-19
AQUAsoluces vous propose une solution efficace !
Gel Hydro alcoolique Ecologique HYDROHANDS, issu de la chimie végétale, respectueuse de l’environnement.
Ce produit est conforme à l’arrêté du 13 mars 2020, et à ses adaptations, lié à la crise sanitaire du COVID-19 2020.
Ce produit est...

